|
Deutsch |
Francais |

FED10 calculates tensions and stresses, deflection and resonance frequency of flat, symmetrical as well as asymmetrical leaf springs.
Quick Input
Quick Input dialogue window allows you to enter dimensions, bedding, material, forces, path load, bending moments and path load altogether, and select calculation and output of results as list, tables, drawing, or diagrams.

Spring geometry and load
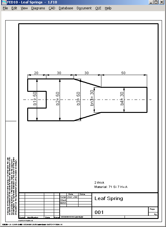
Leaf spring geometry is defined by up to 100 sections.
Load is defined by up to 50 radial and axial forces, path load, bending moments.

Bedding
FED10 calculates leaf springs with fixed clamping, or 2, 3, 4 or 5 bearings. By input of spring rate, you may consider bearing stiffness for calculation.
Material Database
The integrated material database includes mostly used spring steel plate materials. Database may be modified and extended by the user.

Resonance frequency
Resonance frequency of the spring-mass system can be calculated from dead weight and external masses
Diagrams

FED10 displays diagrams of radial force, bending moment, bending angle, deflection, bending stress, tension and reference stress. Diagrams can be printed or exported to CAD or other software via DXF or clipboard.

Calculation Options
You can activate calculation of dead weight and/or external masses as path load. Safety against buckling can be calculated for axial load. Bearing stiffness can be considered for ball-and-socked joints.

Printout
Calculation results with maximum values of deflection, stresses, radial load, bending moment, safety, spring weight, spring rate, center of gravity, bearing pressure and bending angle on supports, resonance frequency, material properties and input data can be printed or exported as HTML table or Excel file.
2D drawing
FED10 generates a true-scale drawing of the leaf spring as DXF or IGES file.

3D drawing
A 3D drawing of the leaf spring can be exported to CAD, or foreshortened on screen.

Production drawing
FED10 generates a production drawing of the leaf spring with all dimensions. Drawing information and modification index can be entered within the program.
