|
Deutsch
Calculation Base

ZAR9 calculates dimensions and load-bearing capacity of helical gears with crossed axis. Axis angle may be 90 degrees or any other input value (>0). ZAR9 is also suitable for worm gears with worm shaft and with a simple helical gear as worm gear. ZAR9 calculates efficiency, forces and safety against sliding abrasion, tooth root breakage and seizure.

Pre-Dimensioning

In Pre-dimensioning you enter axis angle, transmission ratio,input or output speed and power or torque. Recommendations are made for center distance, module and teeth numbers.The recommendations can be used or modified in the following geometry and strength calculations.
Dimensioning
In Dimensioning input, you enter center distance and number of teeth, and ZAR9 calculates normal module and helix angles.
Recalculation
In Recalculation input you enter number of teeth, module and helix angle, and ZAR9 calculates center distance.

Load-bearing capacity
ZAR9 calculates safety against sliding abrasion, tooth root breakage and seizure accord. to Niemann.
Efficiency

ZAR9 calculates efficiency and loss of power by tooth friction, idling, bearing and seals. The program provides a diagram with tooth friction efficiency as function of helix angles.
Material Data Base
The program includes a data base containing the most important gear materials and their properties. Database can be modified by the user.
Drawings and Tables
ZAR9 generates drawings and tables of the gear pair, ready to be used with CAD.
Tooth profile and tooth contact

True-scale tooth profile and tooth contact can be shown in various views on screen.
Tooth flank tolerance and measurement
ZAR9 calculates tooth thickness and over pin/ball diameters. You can input flank tolerances, or select from DIN 3967 tolerance zone.
Animation
ZAR9 animates rotation of gear wheels on screen in axial or radial cross section.
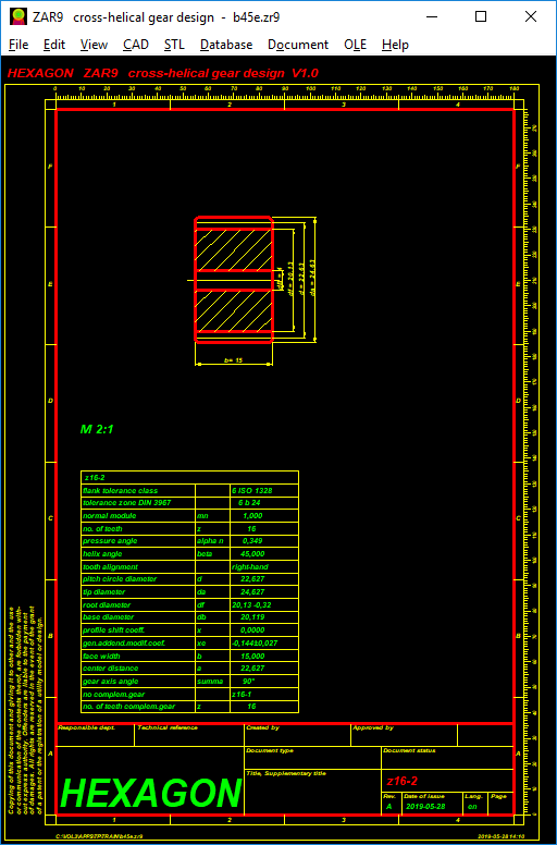
Production Drawing

ZAR9 generates a production drawing of gear wheels with ISO 7200 data field.
Produce a model gear with your 3D printer

ZAR9 generates STL files for printing the gears together with a carrier or case to build a true-size model gear.
Data Exchange
Interface to ZAR3+ (worm gear) and ZAR1+ (helical gear) allows import/export of gear dimensions.
CAD Interface

Drawings and diagrams can be saved as DXF or IGES file to be loaded into CAD.
ZAR9 can be switched between metric units (mm, N, MPa) and imperial units (inch, lbf, psi).
ZAR9 is available as 32-bit app or as 64-bit app for Windows 11, Windows 10, Windows 7.
Scope of Delivery
Software with perpetual license with update rights and user manual (pdf).
Guarantee
HEXAGON gives a 24 month guarantee on full functionality of the software.